Slik blir den nye flerbrukshallen på Dælenenga
Postet av Grüner Fotball den 31. Okt 2020









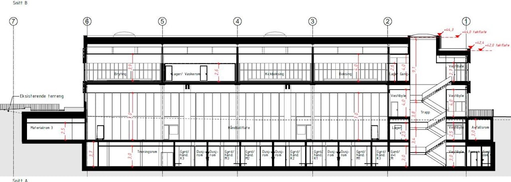
Nå har arkitekten, Pir II, sendt ut nabovarsel med tegninger av den nye flerbrukshallen på Dælenenga, Grünerløkkas nye storstue.
Kommentarer
Logg inn for å skrive en kommentar.
Siste fra Grüner Fotball
Innkalling til ekstraordinært årsmøte
01.10.2025
Innkalling til ekstraordinært årsmøte
01.10.2025
UEFA Play Makers
17.08.2025
UEFA Play Makers
17.08.2025
Fotballskolen for de minste
17.08.2025
Fotballskolen for de minste
17.08.2025